Как да нарисуваме стая с молив и на компютър - правилните начини за представяне на пространството
Ако искате да нарисувате стая, ще ви трябват няколко различни начина за рисуване или специална компютърна програма. Изборът зависи от целта ви. Ако искате да получите груб ориентир за перфектно подреждане на мебелите, ще ви е необходим план на стаята в мащаб.
Ако искате да разработите интериорния дизайн в детайли, ще ви помогне фронтална и ъглова перспектива. Ако не искате да рисувате на ръка или, напротив, искате да направите скиците си цифрови, използвайте софтуер за интериорен дизайн.
Как да нарисуваме стая с молив
На първо място изберете обикновен молив. Ще ви трябват поне две от тях. Първо трябва да направите скица със светли линии.
Това може да се направи с молив с твърдо олово. Не трябва да се натиска прекалено силно, за да може по-късно лесно да се изтрие с гумичка. След това ще може да изтриете скицата и да придадете яснота на линиите с мек молив.
След като сте избрали инструментите за рисуване на стая с молив, можете да започнете да изучавате основните техники за рисуване. Има три основни начина, по които можете да нарисувате всяка стая в бъдеще.
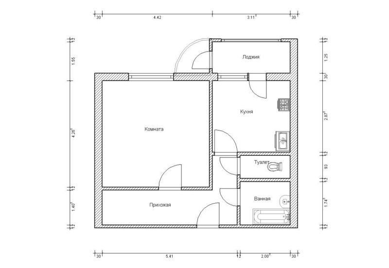
Мащабен план на помещението
Не пресмятайте размера и разположението на мебелите, което ще ви помогне да планирате стаята. Във всеки случай е по-добре да го направите, дори ако ще проектирате на компютър. За да съвпаднат пропорциите на плана с реалния размер, трябва да знаете правилото за мащаба.
Съотношението между изобразения на плана обект и действителния му размер се нарича мащаб. Така че, когато видите надписа M1:100, трябва да ви е ясно, че 1 cm на чертежа е равен на 100 cm в действителност. Помислете за изготвяне на план на стаята стъпка по стъпка.
Измерване на стая
За да съставим план на съществуващо помещение, трябва да измерим помещението с ролетка. Необходими са ширината на стените, дълбочината на отворите, ширината и височината на прозорците и вратите, разстоянието от ъгъла на стената до прозореца или вратата и разстоянието между тях.
Изготвяне на плана
Ако чертаете план на стая върху празен лист хартия, може да ви е необходим мащаб. По-удобно е да рисувате на ръка върху хартията на квадрати.
Като вземете предвид измерванията си и ги преведете в избрания мащаб, нарисувайте стените на стаята с твърд молив. Дебелината им съответства на дълбочината на отворите.
Отбележете прозорците и вратите в плана. Очертайте или нарисувайте стените с мек молив, с изключение на прозорците и вратите.
Ако е необходимо, направете копия на изготвения план за бъдеща работа.
Подреждане на мебелите в плана
В зависимост от целите си изберете начина, по който искате да представите мебелите. Когато искате да дублирате стая, можете да нарисувате мебелите директно върху плана.
Ако искате да видите как мебелите ще се впишат в стаята, когато ги пренаредите, по-добре е да ги изрежете от хартия. Мебелите се измерват и изчертават в съответствие с избрания мащаб.
Фронтална перспектива на стаята
Когато се намираме в една стая, ние я виждаме в три измерения. За да видите приблизително същото на чертежа, трябва да нарисувате стаята в перспектива. Този метод позволява интериорът да бъде представен по-пълно и да се оценят не само неговите пропорции, но и естетическите му характеристики.
Правилото за мащаба се запазва и тук, но то ще съответства на мерните единици на избраните сегменти за дължина и ширина. В перспектива стойността на мащаба намалява числено с навлизането в дълбочина, но пропорциите се запазват.
Представете си, че сте застанали до стена или до входа на стая в центъра. Пред себе си виждате далечната стена и тавана, пода и другите две стени, които излизат от него.
Ще забележите, че отдалечените обекти изглеждат по-малки, а ъглите се появяват прави само на стената срещу нас. Това е фронталната перспектива. Нека разгледаме основните етапи на изграждането му.
- Първо нарисувайте далечната стена като правоъгълник или квадрат. Страните трябва да са успоредни на ръбовете на листа.
- През ъглите на правоъгълника начертайте два диагонала далеч извън правоъгълника.
- Поставете точка в пресечната точка на диагоналите. Това ще бъде точката на изчезване или опорната точка.
- Линиите вътре в правоъгълника вече могат да бъдат изтрити.
Сега, за да нарисувате вратата, първо нарисувайте най-близката до вас страна, успоредна на височината на правоъгълника, след което свържете върха на тази страна с точката на изчезване. По този начин ще получите посоката на горната част на вратата. Нарисувайте прозорците по същия начин.
Дълбочината на отворите за прозорци и врати обаче ще бъде успоредна на ширината на основния правоъгълник. Сега, като използвате референтната точка, можете да нарисувате мебелите в стаята. Важно е да помним, че страните на най-близките до нас обекти винаги са по-големи.
Ъглова перспектива на стая
За разлика от фронталната перспектива, при ъгловата перспектива има две точки на изчезване, а не само една. Както подсказва името, този чертеж може да се използва за показване на стаята откъм ъгъла. Конструкцията е малко по-сложна от тази на предишния модел. Бъдете внимателни при всяка стъпка.
- Начертайте линията на хоризонта приблизително в средата на листа.
- На линията на хоризонта, на един сантиметър от ръба, отбележете две точки на изчезване.
- В средата на хоризонталната линия начертайте перпендикулярна на нея линия за ъгъла на стаята.
- Сега отбележете горната и долната точка на ъгъла на стаята.
- Начертайте линия на тавана през точките на изчезване и горната ъглова точка.
- Начертайте линията на пода през изчезващите точки и долната ъглова точка.
Това ще ви даде шаблон на стая с ъглова перспектива. Дясната опорна точка ще се използва за рисуване на обекти на лявата стена, а лявата опорна точка ще се използва за рисуване на обекти на дясната стена.
Ако се научите да рисувате в перспектива, така че опорната точка или линията на хоризонта да са центрирани, ще можете да ги поставяте на всяко разстояние.
Например, ако линията на хоризонта е поставена по-високо в ъгъла на перспективата, отколкото в средата на листа, можете да нарисувате вътрешността на стаята с повече място за пода.
Това ще покаже повече мебели и други детайли на пода. Ако искате да подчертаете тавана, линията на хоризонта трябва да е по-ниска.
Как да нарисуваме мебелите
Можете да нарисувате стая с мебели, като използвате всички описани по-горе методи. В плана ще нарисувате изгледа на мебелите отгоре. Тук е лесно, просто измерете мебелите и направете чертеж в избрания от вас мащаб.
Когато рисувате мебели в перспектива, първо нарисувайте частта, която е по-близо до гледката, а височината на далечната част се отбелязва, като се съедини горната част на близката част и референтната точка.
Рисуване на стая на компютър
Не искате да рисувате стаята на ръка? Днес има много програми за интериорен дизайн. Това са онлайн редактори или компютърни програми, които ви позволяват да правите 2D и 3D визуализации на дадено помещение.
Безплатните функции обикновено са ограничени, но за лична употреба те са напълно достатъчни. Ето няколко добре познати програми:
- Remplanner - Remplanner ви позволява да съставите подробен план за ремонт. Можете да въведете измерванията си в програмата, да нарисувате стените, вратите, прозорците и т.н. Програмата разполага с режим за 3D визуализация. Програмата е безплатна за използване онлайн и има възможност за закупуване на завършен дизайнерски проект.
- IKEA Planner - известната мебелна компания е известна с оригиналните си решения и творческия си подход към продажбата на мебели. Можете да изпробвате как мебелите от магазина ще изглеждат в дома ви и да симулирате стаята на компютъра си.
- SketchUp - можете да създавате различни 3D модели в SketchUp, включително интериорен дизайн. Безплатната версия е с ограничен набор от инструменти и има ограничения за изтегляне.
- Sweet Home 3D е много проста програма, която можете да използвате онлайн и на компютъра си. Той не е подходящ за професионални дизайнери, но е напълно приемлив за домашни цели. Например можете да го използвате, за да планирате преустройство на дома си.
- Homestyler е програма, която може да се използва за създаване на красиви визуализации. Той може да построи модел на всяка стая и да направи интериорен дизайн с много хубави модерни мебели от известни марки.
Какъвто и метод за рисуване на стая да изберете, трябва да започнете с основите. Направете измервания и начертайте 2D план, преди да започнете да чертаете в перспектива или 3D визуализация на компютър. Скицирането на стаята на ръка ще ви помогне в началните етапи и ще ви позволи да планирате добре съдържанието.
Снимки или видеоклипове на оригиналното помещение също могат да помогнат. Опитайте различни варианти и проявете въображение, за да постигнете най-добрия резултат.
Снимка на боядисана стая




























































































