Производител на дим със собствените си ръце - инструкции стъпка по стъпка за схематични чертежи с примери от снимки
За много хора месото и рибата са традиционни ястия на трапезата им. Приготвяте го по различни начини, но най-популярният вариант е пушенето, а устройството за този случай се нарича генератор на дим за пушене.
Процесът позволява приготвянето на трайно ястие от продукт, който не е бил съхраняван дълго време, което придава на продукта отличен аромат и уникален вкус, който не може да се постигне с други методи на готвене.
Въпреки че на пазара за домакински уреди се предлагат все повече уреди, пушенето със собствените ръце остава търсено занимание.
Функцията и работата на генератора на дим
Процедурата на студено пушене отнема няколко дни. Храната, обработена по този метод, има най-прекрасен вкус и аромат.
Процесът на готвене унищожава патогенните бактерии. Срокът на годност на храната, приготвена в устройствата за студено пушене, достига до една година, което е голямо предимство за устройството.
Особеностите, присъщи на тази процедура, изискват използването на специални единици. Основната характеристика в този случай е генераторът, който произвежда дима.
Съществуват редица изисквания за въпросното устройство. Уредът трябва да може да създава много дим и да контролира интензивността на дима.
Самостоятелният уред в много отношения улеснява приготвянето на пушено месо. За да направите работещо устройство, е препоръчително да овладеете структурата му и да научите как работи.
Всеки генератор на дим има подобен алгоритъм на работа. Всички те се използват за създаване на дим и помагат за пренасянето му в правилната посока. Материалът, който се използва за създаване на дим, е под формата на дърва или дървени стърготини.
Какъв е принципът на действие на генератора на дим за студено пушене, разгледайте подробно:
- Когато горивото изгори, излиза дим, който се приближава към входа на устройството. След това компресорът го задвижва към втората секция на уреда и накрая той се озовава в резервоара за пушене.
- Компресорът играе ключова роля, тъй като предава въздух под високо налягане към флуогенератора. Експертите отбелязват, че тези устройства имат висока ефективност.
- За сглобяване на камерата на генератора на дим, в която ще се концентрира димът, може да се използва всеки подходящ за целта съд. Често се използва алуминиева кутийка за мляко, цилиндър от пожарогасител или термос. Най-добре е да използвате метална тръба. Може да се използва за създаване на генератор на дим за студено и горещо пушене.
- Струва си да се отбележи, че дължината на контейнера не трябва да надвишава 1 метър. Ако направите устройството по-дълго от това, това ще намали производителността му. Димът, преминаващ през много дълга тръба, намалява движението и температурата си.
Принципът на работа на устройството е прост - той се основава на пиролизно разлагане на дървесина с незначително количество H2O.
Накратко казано, в генератора на дим дървените стърготини се нагряват и тлеят бавно в отсъствието на въздух.
Ако интензивността на генератора на дим е избрана неправилно, резултатът ще бъде невкусно пушено месо.
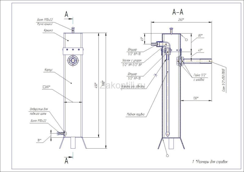
Схематични чертежи и работни инструменти
Процедурата по сглобяване се улеснява, ако разгледате подробно чертежите на генератора на дим. Чертежът трябва да показва тялото на уреда в кръг или квадрат.
Дълготрайността на устройството се определя от избора на суровини за корпуса, като за целта може да се използва неръждаема или поцинкована стомана. Стените на уреда трябва да са добре уплътнени.
Ако направите обратното, димът ще излезе в околния въздух. Важно е да се включат ежектор с размери и компресор. За да си направите сами устройство за генериране на дим, ще ви трябват следните материали и инструменти
- стоманена тръба, d - 10 cm
- Пластмасов тръбопровод - с дължина не повече от 3 м, или можете да използвате метален маркуч;
- компактен компресор, подходящ за аквариуми;
- парче метална тръба, на разстояние 40 cm, d - 2,5-4 cm;
- с диаметър, подобен на този на димоотвода;
- стартер и електрически проводници;
- термометър.
Подгответе инструменти за работа: заваръчен апарат, шлайфмашина. Добре е да имате умения за работа с тези инструменти, за да не се нараните по време на сглобяването на генератора за дим и да направите всичко правилно и внимателно.
Как да си направим сами генератор на дим?
Основният функционален орган на пушача е генераторът на дим, който може да се сглоби от всичко, което е под ръка. Резервът за провизии може да се създаде, като се даде нов живот на счупен хладилник, бутилки и варели, печка за газ.
Дизайнът на малка пушалня, която може да се разглобява и премества, е най-удобен за използване. Може да се разглобява, съхранява и транспортира за риболов, лов и празненства.
Сглобяемата и разглобяема конструкция позволява подобряването на устройството, подмяната на части и резервоари. Съществуват и стационарни устройства с големи размери. Пушачът е оборудван с клапа, която позволява увеличаване на въздушния поток в горивната камера.
От стар хладилник
Първо, подгответе хладилника. Отстранете всички неметални елементи от стария апарат, включително изолацията на вратата. При нагряване тези елементи отделят вредни вещества, които могат да направят храната негодна за употреба.
За да се осигури плътно уплътнение, гумата на уплътнението трябва да се остави на мястото си, за да изпълнява своята роля. След премахването на ненужните елементи ще останат дупки, които трябва да се запечатат с лепенка или тиксо.
Ако е възможно, е препоръчително да се монтира вентилатор в горната част на хладилника, за да се разпръсне димът, а отстрани трябва да се направят отвори за бъдещото поставяне на решетките на продукта.
Съществуват два вида хладилни комини: открити или преносими, стационарни:
- Моделът на открито изисква не само хладилник, но и генератор на дим. Генераторът на дим изисква тиган с дебело дъно и капак. За да се създаде генератор на дим, в дъното на тенджерата се правят отвори, а в капака се вкарва маркуч с дължина 1 метър. Вторият му край е свързан с камерата на хладилника на мястото на компресора. На дъното на хладилника са монтирани 1200-ватови електрически нагреватели, които поддържат температура от 80 градуса, докато храната се приготвя. Вместо нагревателен елемент може да се използва електрическа горелка. Ръчно изработената пушалка трябва да се напълни със суровината за готвене: плодови стърготини. Месото се окачва на куки или се поставя на рафтовете на хладилника. Деликатесите могат да се консумират след няколко часа.
- За модела на домашна пушалня ви е необходим хладилник, който трябва да бъде изпразнен и монтиран на балкон, лоджия или в кухненското помещение в близост до аспиратора. В допълнение към хладилника се взема електрическа печка и се монтира на открита горелка - тиган, метален лист. Затворен тип горелка ще бъде още по-добър. Преди монтажа се уверете, че доставената готварска печка няма да попречи на затварянето на вратите. Върху печката се поставя тиган или тава с разпръснати плодови стърготини. Върху нагорещения тиган или въглища се поставят ароматни плодови стърготини и огнището се покрива с капак. Сега започва процесът на опушване. Деликатесът може да се закачи на куки или да се постави на рафтове.
От метална бъчва
Конструкцията може да се разглобява, което позволява да се правят подобрения, да се сменят елементи и контейнери:
- За построяването на този апарат можете да използвате стара газова бутилка, чифт метални варели, пръти и стоманени плочи, пет секции от тръби с дължина 50 см, d - 10 см, бормашина с бормашина, шлайфмашина и уред за заваряване.
- Газовата бутилка ще служи за пещ, бъчвите се изрязват и се превръщат в съдове за пушене, където се монтират метални решетки и пръти за провизии.
- Коминът е изработен от тръби и към него е включен ръчно изработен генератор на дим. В този случай температурата на дима се определя от дължината на подвижния конектор.
- Корпусът на генератора на дим представлява висока тенджера или кутия. В капака на тенджерата трябва да се направи отвор за конектора, който да се свърже с комина.
- На дъното на опушения съд се слагат дървени стърготини.
- От външната страна трябва да се направи отвор на 3 см от дъното за запалване.
- След това в корпуса се прави връзка за компресора, взет от аквариума, а срещу горивната камера има отвор за комина, който се свързва с камерата за провизии.
Версия на тръбата
- На първо място трябва да се изгради камера за огън. Средната височина на генератора е 70-80 cm.
- В горната част трябва да има подвижен капак. Това е необходимо, за да се зарежда лесно гориво в средата на устройството.
- В долната част на секцията е направено малко приспособление, в което да попадат пепелни продукти.
- При обикновените форми стружките се поставят на дъното на уреда, който е здраво заварен към края на тръбата. В този случай устройството се обръща с главата надолу за почистване. В този опростен модел няма чекмедже за пепел.
- Има и друг тип. Чиповете се подават към решетката, закрепена на определено разстояние от дъното на устройството. След като горивото изгори, пепелта се изсипва през решетката. Дъното на тези модели се сваля.
- Независимо от избрания тип, в долния прорез на генераторния блок се прави отвор d - 5, 6 mm. През този отвор в уреда влиза малко количество въздух, необходим за тлеещите дървени стърготини.
- В горната част на парцела, на 7-9 см под върха, се прави още една дупка. От този отвор ще бъде прикрепен димният генератор и ще излезе изходната тръба на димния генератор.
- Изготвен е ежекторът. Еджекторът се използва за изсмукване на дима от генератора и прехвърлянето му към димохода. Ежекторът представлява тръба с малко сечение, в която налягането от компресора навлиза и отива на два сантиметра в димоотводната тръба с по-голям диаметър. Поради факта, че въздушната маса се движи бавно, се получава минивакуум и димът от камерата започва да се изхвърля в комина.
На този етап основните компоненти са сглобени и укрепени и остава да се сглобят компонентите на димогенератора и да се определи ефективността на функциите му.
Генератор на дим за студено пушене
Гледането на видеоклиповете по темата ще даде основание на всеки собственик, който не е специалист, да направи този апарат. За да сглобите устройство за студено пушене със собствените си ръце, ще ви е необходимо:
- Парче метална тръба. Без значение каква е формата на тръбата - кръг или квадрат, нейното d е 10-14 cm. Тръбата е средата, в която дървените стърготини тлеят и се получава дим;
- тръба с по-малко напречно сечение, за да се създаде ежектор;
- пружина, разположена в центъра на камерата. Използва се за лесно издигане на дима от дървените стърготини отдолу нагоре;
- вентилатор за вкарване на въздух в ежектора.
- Термометър - той измерва температурата в центъра на генератора, за да не се допусне охлаждане или прегряване на резервоара, който генерира дима.
Характеристики
Студеното пушене отнема от 2 до 3 дни, което го прави трудно, тъй като трябва периодично да се следи за поддържането на правилната температура, без да се допуска прекалено повишаване или понижаване на температурата.
Генератор на дим за студена форма на пушене - той генерира необходимото съдържание на дим, необходимо за успеха на процедурата, и също така подава дима в резервоара за пушене.
Основното му предимство е, че може да работи в машинен режим и не изисква денонощен надзор.
За правилното пушене не са необходими трески от иглолистна дървесина; подходящи са трески от широколистна дървесина и плодова дървесина.
Сглобяване
Основните компоненти на генератора на дим са: парче тръба, което служи за камера; димна тръба; затвори с компресор. Важно е да се сглобяват в тази последователност:
- Камерата е подредена. Височината на устройството е 70-80 см. Върху него е изработен подвижен капак за запълване на средата на дървените стърготини и за почистване;
- На дъното има устройство за натрупване на пепел. При обикновените модели чекмеджето за пепел не е изработено, а капакът е заварен отдолу. Уредът се накланя нагоре, за да се изпразни пепелта. В грижливо изработените уреди дървените стърготини се трупат върху решетка, закрепена в междината отдолу. Дъното е проектирано така, че да може да се сваля по подобие на чаша. Предвижда се стъклото да се постави на дъното и да се закрепи с болтове;
- в долната част на генератора на дим се пробива отвор с диаметър 5-6 мм, за да може да преминава въздух;
- В горната част на камерата се пробива отвор на разстояние 7-8 cm от върха. След това можете да поставите пластмасова тръба върху нея, за да подадете въздух към пушалката;
- сглобен е изхвъргач. Това устройство засмуква дима от генератора на дим и го предава към комина.
Генераторът на дим дава възможност за лесно повлияване на процеса на пушене. За да създадете сами това устройство, ще трябва да направите чертеж, в който да определите размерите на отделните части.
Видеоклип и инструкции ще ви помогнат да създадете този продукт. Както виждате, напълно възможно е да си направите уреда сами, но е необходимо търпение, отдаденост на целта и известно време. В този случай всичко ще се получи перфектно!
Снимка на самоделни машини за дим


















































































